18,894    38    0  

Fremdriftsplan KUB

 815     Tromsø     0
Planlegger KUB-muring og har forsøkt å lage en slags fremdriftsplan.
Innspill ønskes, særlig ang ting som forventes å ta lengre tid, evt kortere! Andre tips og triks er også velkomne...

Plan grunnmur
1.Nov, mandag
Grunnarbeid starter opp. Uavhengig av vær. Estimert av entrepenør til å ta 2-3 dager. Satser på å        få levert KUB i tomta fredag 5.nov.
Satser på ferdig grunn i byggegrop med pukklag til fredag.

5.Nov-7.Nov, fredag-søn.
Rette opp pukklag.
Plassere ut såleblokk.
Plasser elementene.
Væravhengig? Regn går rett ned og gjennom og ned på/gjennom pukk?
Beskytte topp på elementene mot betong søl, med plast og pappspiker.
Dekke til med presenning.
Radonbrønn? Legge ut drensrør for gjennomføring til eget rom i kjeller? Hvordan få sikret dette mot lekkasje før evt videreføring av rør opp over tak? (støpe røret ned i betong, eller opp gjennom betong og tette?)
Fylle pukk innenfor muren?

8 nov, mandag
1 støping: såleblokk og ca ½ skift. Betongmengde ca 8-9m3.
Fylle pukk innenfor muren? Tilpasse for fordeling av grunnisolasjon. Rette opp med laservater.

9.nov, tirsdag.
Legge ut gulvisolasjon, og radonduk. Tettes med spesialteip mot eps innervegg. Radon mellom 2 lag isolasjon, eller på topp?
Tettes rundt evt rørgjennomføring ved radonbrønnrør til rom i kjeller,
Væravhengig?

10.nov, onsdag
Armeringsnett og legging av rør til vannbåren varme. (behov for varme i uinnredet kjeller som på sikt ikke skal ha godkjente oppholdsrom?) ca 40-50 m2, 2 sløyfer i potensielt hobby og kino-rom

11.nov, torsdag
Oppsamlingsdag, ved forsinkelser. Evt støpe gulv hvis i rute.

12. nov fredag
Støping av gulv.

12-15 nov fre-man
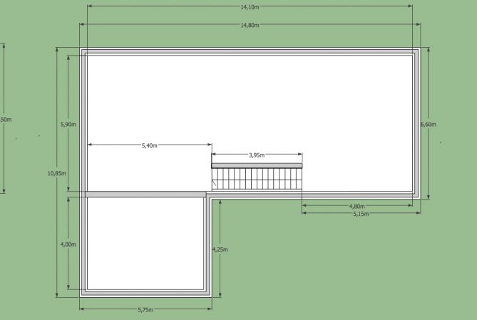
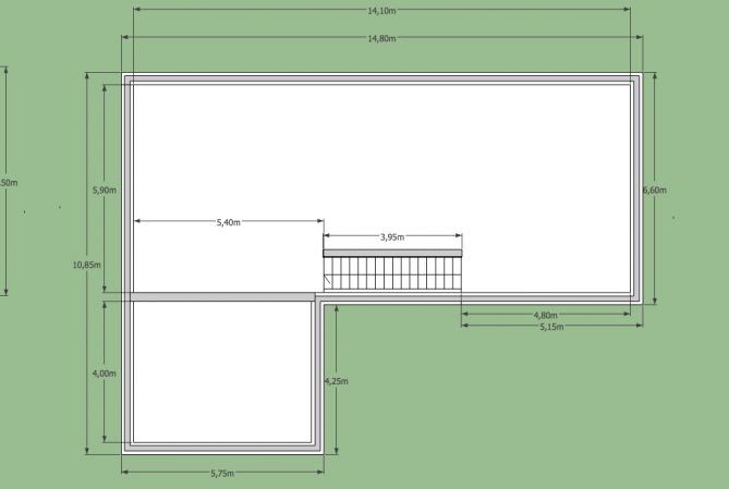
Mure videre med KUB. Hele høyden… Ingen vindu og ingen dører.
Væravhengig. Dekke til åpning i elementer med presenning.
Starte avstiving av vegger. Forskalingsbøyler, eller skru fast og sidestøtte 45 grader.

16.Nov, tirs.
Forbereding til støping, forsette avstiving av vegger.

17.November,ons
Støpe vegger kjeller, ca 25m3.
Husk armering til videre mur på bakvegg.
Forberede støttevegger til langvegg. LECA15cm?

18-23 November, tors -tirs
Vente på at betong skal herde.
Kle KUB utvendig med vorteplast?
Klargjøre drensrør?
Støpe støttevegger i leca.

24.november, ons (evt 25.nov ved treg herding)
Fylle intill mur? (i alle fall bak huset, før videre KUBmurning av bakvegg, kan enda være åpent langs langvegg på østsiden til legging av rør) Evt lage stilas.
Montere hulldekke.

25-29 november, tors-lørdag
Stable bakvegg i KUB. Forskale endevegger ved verandaskyvedør og vaskeromsdør. Bruke smygelist her?
Sikre trappehull, pluss tette for nedbør.
Evt montere egneprodusert midlertidig kjellertrapp? (evt skjulte vanger til fremtidig kjellertrapp, med midlertidig trinn…)

29.november, man.
Støpe bakvegg KUB., ca 10m3

30nov-5 des.
Vente til betong har herdet.
Støpe bærevegg i leca mellom tv-stue og bad. Med krone på topp.

6 desember, klar til elementmontering!?!?!


Edit: Info, vi er 2 stk som jobber 100% med mureprosjektet. (ferie og pensjonist)
Siste redigering: Tuesday, October 12, 2010 3:27:15 PM av galemattis

   #2
 1,768     Østlandet     0
Legging av isolasjon brukte jeg litt tid på, men hadde mange rør som kom opp, så det gikk mye tid på tilpassing rundt disse.

Du har 7 dager fra støping til tilbakefylling? Mange sier man bør vente 14 dager. Naboen fikk 7cm skjev mur pga for tidlig tilbakefylling.

Syns likevel tidplanen er ganske tight, hadde heller lagt inn litt flere oppsamlingsdager. Ting tar tid ;)
Men om dere driver 12-timers dager er selvsagt ingenting umulig:) Som sagt vanskelig å si, ettersom jeg hadde tid til å strekke det litt ut.

Når skal du gyse hulldekket?
   #3
 1,694     Bergen     0
Hvis den veggen som er 14800 lang skal være i KUB, så må du ha støttevegg.

TIPS !! Skaff deg en god sag til å sage KUBen med. (les kjøpe ny)
Ikke spar på armering i KUB. Og heller ikke 2"/4" til avstiving. Jeg brukte omtrent 700m med 2"/4"
Brukt B30 betong med akselrator i KUB.

Lykke til....
   #4
 81     0
Nå har jeg ikke lest tråden godt nok, men jeg har nettopp bygget en grunnmur på et hus på 140 m2 grunnflate, og her er min erfaring:

- Dersom du står for sålen - denne tar lengre tid enn du tror. Jeg er ikke spesielt erfaren - og hadde ikke så mye hjelp av erfarne, så for meg tok selve sålen ca 70 timer.
- Murene mine gjorde jeg i stor grad selv, men hadde 2-3 dager med maks innsats fra dugnadslag på opp til 8 personer. Murene og isolering av platen tok i underkant av 300 timer.

Andre tips:

- Lær av meg: Du trenger 10 % mer betong enn du har regnet ut. Tro meg.
- Betongen blir dyrere enn du tror.
- Jeg brukte proffe folk til platen - det er jeg veldig glad for. De tok 100 kroner kvadraten.
- Du må bygge en støttemur hver 6 meter på den lange veggen. Bruk de veggene du har allerede, men lag de i leca, mur eller KUB.
- Der platen går inntil KUB-en må du skjære firkanta hull på 10x10 cm hver meter slik at platen kommer i kontakt med betongkjernen i veggen. Dersom det ikke er jordtrykk på andre siden av veggen tror jeg ikke dette er nødvendig.

Kos deg. Det gjorde jeg Smile

mvh
Simon
   #5
 1,768     Østlandet     0
Ettersom du skal ha hulldekke gjelder ikke 6-meters-regelen like slavisk. Hvis du horisontalarmerer veggen, og gyser fast dekket før du fyller inntil kan du ha lange spenn, hvor lange vet jeg ikke, men det står beskrevet i Thermomur 350 dokumentasjonen. Men om du skal ha vegger likevel, kan du like gjerne smekke opp en leca-vegg, så slipper du bekymre deg.
   #6
 1,630     Villmarkstoppen, Malvik     0
Jeg har vel egentlig ikke annet å tilføye enn at jeg synes tidsplanen høres tight ut, veldig tight.
F.eks 3 dager fra entreprenør 'planlegger' å starte til du kan sette igang - da bør det være en bra enkel tomt og entreprenøren være veldig strukturert...

Det er ALLTID noe som går skeis eller ikke er levert eller blir utsatt. Er det i Tromsø du skal bygge? Hva med uvær, snø og jævelskap som ligger i kø i november - det vil garantert ta lenger tid om du må hente KUB-elementene rundt i nabolaget eller måke og koste snø før du starter om morgenen... ;)

Jeg brukte bare omkring en uke fra jeg startet med såleblokka til KUB'en var støpt, men det gikk mye tid før og etter - ca 2 måneder på det du beregner 1 måned på. Nå var det ikke full fart ALLE dager men likevel...
  (trådstarter)
   #7
 815     Tromsø     0

Legging av isolasjon brukte jeg litt tid på, men hadde mange rør som kom opp, så det gikk mye tid på tilpassing rundt disse.

Du har 7 dager fra støping til tilbakefylling? Mange sier man bør vente 14 dager. Naboen fikk 7cm skjev mur pga for tidlig tilbakefylling.

Syns likevel tidplanen er ganske tight, hadde heller lagt inn litt flere oppsamlingsdager. Ting tar tid ;)
Men om dere driver 12-timers dager er selvsagt ingenting umulig:) Som sagt vanskelig å si, ettersom jeg hadde tid til å strekke det litt ut.

Når skal du gyse hulldekket?

Checked. utsette tilbakefylling er nok lurt. Krever da litt stilasbygging ved videre KUBing i høyden, evt vente til etter tilbakefylling
Skjønner på tilbakemeldingene at tidsplanen er tight! Og ting tar jo gjerne lengre tid, så den er inne til revidering:)

Gysing kan vi vel kanskje gjøre samtidig med støping av bakvegg?

  (trådstarter)
   #8
 815     Tromsø     0

Hvis den veggen som er 14800 lang skal være i KUB, så må du ha støttevegg.

TIPS !! Skaff deg en god sag til å sage KUBen med. (les kjøpe ny)
Ikke spar på armering i KUB. Og heller ikke 2"/4" til avstiving. Jeg brukte omtrent 700m med 2"/4"
Brukt B30 betong med akselrator i KUB.


ja planlegger 1-2 støttevegger på langveggen. (er bare ikke tegnet inn på skissen pga usikkerhet rundt om jeg trenger 1 eller 2...)
prisforskjellen på B30 vs B20 er jo ikke stor, men Sunde "anbefaler" jo B20??
Brukte du da skråstøtter inni muren også? Hvordan gikk dette mtp stilas og slikt?
Angående sag er jeg jo på utkikk etter en bra og kjapp måte å kutte KUB'en på, brukte du bare vanlig håndsag? Eller bordsag/sirkelsag?
  (trådstarter)
   #9
 815     Tromsø     0

Nå har jeg ikke lest tråden godt nok, men jeg har nettopp bygget en grunnmur på et hus på 140 m2 grunnflate, og her er min erfaring:

- Dersom du står for sålen - denne tar lengre tid enn du tror. Jeg er ikke spesielt erfaren - og hadde ikke så mye hjelp av erfarne, så for meg tok selve sålen ca 70 timer.
- Murene mine gjorde jeg i stor grad selv, men hadde 2-3 dager med maks innsats fra dugnadslag på opp til 8 personer. Murene og isolering av platen tok i underkant av 300 timer.

Andre tips:

- Lær av meg: Du trenger 10 % mer betong enn du har regnet ut. Tro meg.
- Betongen blir dyrere enn du tror.
- Jeg brukte proffe folk til platen - det er jeg veldig glad for. De tok 100 kroner kvadraten.
- Du må bygge en støttemur hver 6 meter på den lange veggen. Bruk de veggene du har allerede, men lag de i leca, mur eller KUB.
- Der platen går inntil KUB-en må du skjære firkanta hull på 10x10 cm hver meter slik at platen kommer i kontakt med betongkjernen i veggen. Dersom det ikke er jordtrykk på andre siden av veggen tror jeg ikke dette er nødvendig.

Ja har tenkt å la proffe folk ta seg av å støpe kjellergulvet (tar 100kr/m2 pluss litt transport) Ellers planlegger jeg å bruke Sundes Såleblokk.
Ang betongmengde, 10% mer enn det du har beregnet, eller som produsent har beregnet?
Hull i isolasjon for å få kontakt med betongkjerne hadde jeg tenkt å bruke stort hullborr.
  (trådstarter)
   #10
 815     Tromsø     0

Jeg har vel egentlig ikke annet å tilføye enn at jeg synes tidsplanen høres tight ut, veldig tight.
F.eks 3 dager fra entreprenør 'planlegger' å starte til du kan sette igang - da bør det være en bra enkel tomt og entreprenøren være veldig strukturert...

Det er ALLTID noe som går skeis eller ikke er levert eller blir utsatt. Er det i Tromsø du skal bygge? Hva med uvær, snø og jævelskap som ligger i kø i november - det vil garantert ta lenger tid om du må hente KUB-elementene rundt i nabolaget eller måke og koste snø før du starter om morgenen... ;)

Jeg brukte bare omkring en uke fra jeg startet med såleblokka til KUB'en var støpt, men det gikk mye tid før og etter - ca 2 måneder på det du beregner 1 måned på. Nå var det ikke full fart ALLE dager men likevel...

Toight like a toiger, som de sier i Austin Powers:)
Ja, innser at jeg må revidere planen litt, men det var jo noe av det som var hensikten med å første utkast: Ha en tett plan, holde fokus underveis og prøve å tenke på alt før vi starter.

Men Murphy lusker vel rundt hvert hjørne, enten i form av forsinkelser utenfor min kontroll, eller gode gamle høststormer;)