Er du sikker på at du har forstått entreprenør rett? Jeg må ut å handle til jul nå men skal se om jeg kan tegne/ finne en skisse til deg slik det vanligvis gjøres og med det alternativet du ønsker i forhold til varme. Kan se på forslag for fundament for bærevegger også om du vil.
Om du har noen gode tegninger på hvordan dette normalt løses så hadde det vært supert. Skal iallfall ta med innspill til entreprenør. PS! Ingen hast - kos deg med jula:-) - det blir nok ikke noen nye runder med entreprenør før over nyttår.
Legger ved illustrasjon som viser hvordan arkitekt foreslo dette.
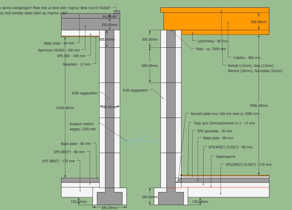
Som nevnt så ser jeg poenget med å støpe en plate tidlig og legge resten senere når bygg er tett. Men de fleste tegninger jeg har sett viser også stort sett isolasjon under plate hvor plate er støpt på toppen. Et av argumentene fra tømrerentreprenør mot dette var at f.eks. radonsperren ville lage et basseng som ville fylle seg ved nedbør om denne blir lagt før plate og tett bygg.
Det er også mulig at jeg kan trenge plass til noen rør i gulv (ventilasjon/el) pga. lydhimling i kjeller, noe en også kanskje bør tenke på i denne sammenheng (men godt mulig dette er like bra/enklere å føre i vegger?).
En liten oppdatering her med sannsynlig løsning for min del. I eksempelet har jeg nå brukt målene på Sunde KUB, men jeg har ikke utelukket Vartdal sin helt enda.
Det så ut som en bedre løsning. Du klarer deg fint med S80 EPS under betongen (kanskje noe mer trykkfast under bærevegger, men det kan sikkert noen andre svare på). Husk også at du må ta med toppsvill på grunnmuren, som I-bjelkene legges an på. Du vil da få noe mer takhøyde. Pass også på at de som gjør grunnarbeide for deg legger en "pute" med pukk av en hviss tykkelse, slik at rørleggeren får litt å legge rør i. 130mm er ikke mye når man skal legge 110mm rør med fall.
Du nevner også i en tidligere post at du ønsker å armere mer enn det "vanlige" Med 300mm høye blokker kan du legge inn mer armering enn i 600mm høye. Tro meg, du vil ikke belage deg på å måtte tre inn armeringsjern i fra sidene, det er en skikkelig drittjobb.
Spenncon elementet og påstøpen må du dra lengre inn. Slik det ligger nå vil du få en stor kuldebro. Du kan la ytterdelen av isoporelementet gå 285mm lengre opp. Da har du også forskaling for påstøpen.
Jeg venter fortsatt på en avklaring om type isolasjon jeg må bruke. I bod under garasje (til venstre på tegning) skal det ikke komme ned noen laster på innvendig gulv. I kjeller har jeg blitt fortalt at det er bare bjelkelaget som skal holdes av innvendige bærevegger. Det blir ta to bjelkelag, kjeller/hovedetasje + hovedetg/loft. Taket hviler visst bare på ytterveggene slik jeg har forstått det.
Men om det kreves S150 under bærevegger, er besparelsen på S80 så stor at det er verdt bryderiet med å mikse de to?
Mener du (ttorneby) at det er verdt ekstra kost og bry med å heller legge 2x300 mm blokker enn 1x600mm der man skal armere ekstra? Legger man ikke bare klar armering på blokken under for så å "fiske" opp og henge disse i fester/kroker under midten på 600 mm blokk? Så legger man bare de øverste jernene rett oppi?
Når det gjelder garasjen og boden under så er det bare boden som er tenkt isolert (først og fremst for å sikre frostfrihet). I tillegg skal det utenpå kles med fasadeplater i samme plan. Derfor bør nok stenderne over stå helt på kanten slik at man får lektet ut til plater så disse kommer i samme plan. Jeg ser derfor ikke noen gode alternativer til denne løsningen selv om den ikke er optimal mht. kuldebro.
Å stable blokkene tar sikkert ikke mer en 5% av den totale tiden det tar å bygge grunnmuren. Det er lekende lett, selv kona mi klarte dette Å fiske opp armeringsjern vil ta deg masse ekstra tid sammnliknet med å legge dobbelt opp med blokker (altså 300mm høye). Jeg hadde ikke gjort det sånn hvis jeg kunne slippe. Plaststegene som binder de to isolasjonplatene sitter tett, og med 600mm høyde er det ikke lett å fiske opp lange armeringsjern og binde disse fast.
Skal forhøre meg nærmere om dette og konsekvens for pris. Kanskje dette blir en god grunn for KUB siden disse også kan leveres som 300 mm høye blokker. Vartdal har visst bare 600 mm.
Legger ved illustrasjon som viser hvordan arkitekt foreslo dette.
Som nevnt så ser jeg poenget med å støpe en plate tidlig og legge resten senere når bygg er tett. Men de fleste tegninger jeg har sett viser også stort sett isolasjon under plate hvor plate er støpt på toppen. Et av argumentene fra tømrerentreprenør mot dette var at f.eks. radonsperren ville lage et basseng som ville fylle seg ved nedbør om denne blir lagt før plate og tett bygg.
Det er også mulig at jeg kan trenge plass til noen rør i gulv (ventilasjon/el) pga. lydhimling i kjeller, noe en også kanskje bør tenke på i denne sammenheng (men godt mulig dette er like bra/enklere å føre i vegger?).
Sleneset - langtidsprosjektet som endelig realiseres
Sleneset - langtidsprosjektet som endelig realiseres
Du nevner også i en tidligere post at du ønsker å armere mer enn det "vanlige" Med 300mm høye blokker kan du legge inn mer armering enn i 600mm høye. Tro meg, du vil ikke belage deg på å måtte tre inn armeringsjern i fra sidene, det er en skikkelig drittjobb.
Men om det kreves S150 under bærevegger, er besparelsen på S80 så stor at det er verdt bryderiet med å mikse de to?
Mener du (ttorneby) at det er verdt ekstra kost og bry med å heller legge 2x300 mm blokker enn 1x600mm der man skal armere ekstra? Legger man ikke bare klar armering på blokken under for så å "fiske" opp og henge disse i fester/kroker under midten på 600 mm blokk? Så legger man bare de øverste jernene rett oppi?
Når det gjelder garasjen og boden under så er det bare boden som er tenkt isolert (først og fremst for å sikre frostfrihet). I tillegg skal det utenpå kles med fasadeplater i samme plan. Derfor bør nok stenderne over stå helt på kanten slik at man får lektet ut til plater så disse kommer i samme plan. Jeg ser derfor ikke noen gode alternativer til denne løsningen selv om den ikke er optimal mht. kuldebro.
Sleneset - langtidsprosjektet som endelig realiseres
Skal forhøre meg nærmere om dette og konsekvens for pris. Kanskje dette blir en god grunn for KUB siden disse også kan leveres som 300 mm høye blokker. Vartdal har visst bare 600 mm.
Sleneset - langtidsprosjektet som endelig realiseres