51,143    278    22  

Villadrømmen i Asker

 4,043     Asker     4
Hei alle,

Da er det endelig tid for oss å kunne starte tråden om vårt hus i Asker. 2018 starter byggingen av en enebolig i Ånnerudskogen i Asker, og da er det bare rett og rimelig å starte tråden.

Litt om oss. Vi er en liten familie på 3, og vi bor i Asker. Januar/Februar tegnet vi kontrakt og kjøpte en tomt uten noen form for byggeklausel i Ånnerudskogen i Asker. I tiden etter har vi vært i kontakt med en rekke forhandlere, og har tegnet en kontrakt om å tegne og søke bolig med Mesterhus Asker og Bærum. Det er sannsynlig at vi går videre med dem, men den kontrakten er ikke signert. 

I alle tilfeller ønsker jeg å dele tegningene våre og få litt tilbakemelding på dem. Vi har jobbet ganske lenge med de, og grunnet begrensningene i reguleringsplanen er vi ganske på grensen av alle mål i alle retninger, samt utnyttelse. Men noe fleksibilitet har vi fortsatt.

Slik vi står idag er det planlagt Plannja tak, Royal Natur kledning og koksgrå/sorte/mørke vinduer utvendig, mens malt hvite invendig.

Kom gjerne med deres tanker rundt plan/fasade etc




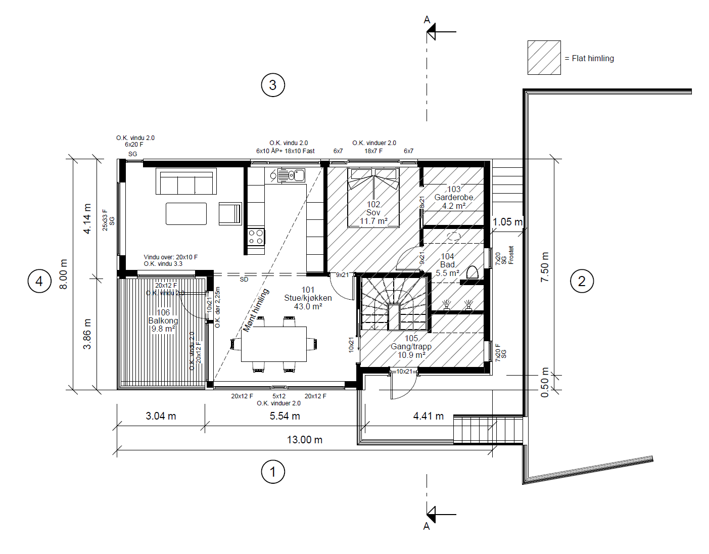
Villadrømmen i Asker - 1etg.PNG - Børhaug
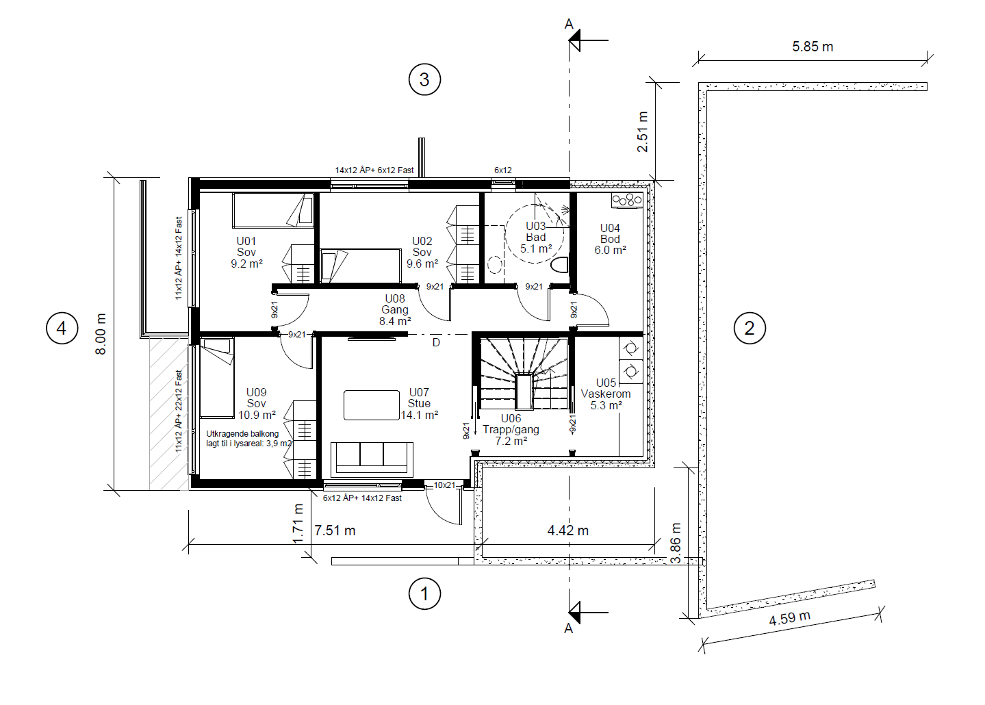
Villadrømmen i Asker - uEtg.PNG - Børhaug
Villadrømmen i Asker - kjeller.PNG - Børhaug
Villadrømmen i Asker - Fasade3d.PNG - Børhaug
Signatur
Husk dette under oppussing: Lagre kvitteringer, bilder og avtaler i Boligmappa. Logg inn her

   #1
 299     Oslo     0
Ser veldig lovende ut, blir artig å følge!

Noen raske spørsmål etter å ha raskt sett på mobilskjermen:
I stue/kjøkken etasjen er det kun bad som har adgang gjennom soverom, kan det være kjekt å ha det uten å måtte gå gjennom det som ser ut som hovedsoverom?
I etasjen hvor det er vaskerom: bytte om bod og vaskerom så det er adgang nærme bad og da også soverommene?
Mulig det var min dårlige skjerm, men det var litt vanskelig å se hvilken etasje som var hva?
Signatur
  (trådstarter)
   #2
 4,043     Asker     0
Det stemmer at adgang til bad kun er gjennom hovedsoverom. Vi har vært litt frem og tilbake på det. Men konkluderte med at vi hver dag går på det badet selv, og at de dagene vi har gjester kan de gå ned. Og er de dårlig til beins får de heller bruke master bathroom.

Det med vaskerom skal jeg gi en ekstra tanke. Men Det blir da lenger fra hovedetasje, og det er tross alt vi voksne som skal vaske;)

Kan også legge til at utsikten er utover Asker golfbane. Så inget innsyn fra vest, samt natur rett inn den veien. Skal se om ikke jeg finner noen bilder.
Signatur
  (trådstarter)
   #3
 4,043     Asker     0
Når jeg tenker litt på det med vaskerom er det mulig årsaken til plassering var knyttet til en annen layout i øverste etasje tidligere, som ga mulighet for skittentøyssjakt. Skal høre litt med arkitekten. Mulig det er smart å bytte om. Sentraliserer også vann. Som gjerne ikke er så dumt.

Takk
Signatur
  (trådstarter)
   #4
 4,043     Asker     0
Siden det er begrenset med ting jeg kan gjøre med huset for tiden har jeg startet å utforske litt smarthus, og fått installert Home Assistant på en Raspberry Pi. Ganske morsom sak, med mange muligheter.

Villadrømmen i Asker - image.jpg - Børhaug
Signatur
   #6
 32     0
Stilig hus med praktisk planløsning! Kort spørsmål: Har dere tenkt på å gjøre om kjelleren til leilighet? Legg til et kjøkken i kjellerstua, dropp døra fra trappen og du kan innkassere et rimelig greit leiebeløp i mnd.
  (trådstarter)
   #7
 4,043     Asker     0
Det er planlagt å kunne gjøre dette. Huset er designet slik at det skal fungere i begge tilfeller. Men det vil bli ferdigstilt som en bruksenhet, med tilstrekkelig lydissolering til at vi kan ha vår pensjon der. Det er dåg fristende, da estimerte inntekter er 13-15k i mnd:) Så vi får se.

Vi har hatt behov for en avstandserklæring til nabo, og den fikk vi signert for noen dager siden. Så Ganske fornøyd med det. Nabovarsel går da ut så fort Mesterhus har alt ferdigstilt til det.

Grov oppmåling av hjørner og høyder blir også gjort, for å verifisere at digitalt kart er rikrig. Blir også utrolig gøy å se nøyaktig hvor huset blir. Gleder meg som en unge.

Se gjerne situasjonskart. For de som lurer klarerer vi både hovedvann (jippi!!) og bare mindre justeringer til privat stikkledning. Men den kan jeg koble meg på uansett.
Villadrømmen i Asker - sittuasjon.PNG - Børhaug
Signatur

  (trådstarter)
   #8
 4,043     Asker     0
Var innom for å se plassering av hus. Gøy å få noen stolper på huset. Fikk knipset noen bilder av tomt og utsikt også.

Signatur
  (trådstarter)
   #9
 4,043     Asker     0
Idag var en produktiv planleggingsdag. Avklart en hel masse ting med kommunen. Utrolig mange detaljer man bør finne ut av som må avklares. Samt man sparer en god del penger dersom kommunen kan uttale seg på forhånd om ting som er ganske rett frem. Da slipper man å få laget utredninger og annet som koster mye.

Også startet å få priser på løsninger for brannsikring. Vi må enten bygge brannkum (dyrt!!!) eller gjøre boligsprinkling (heller ikke billig). Men fått noen tilbud på vanntåke på ca 200k INK mva. som virker interessant. Det er helt skjult anlegg og bare noen hvite lokk her og der. Kommer flere tilbud inn snart.
Signatur
   #10
 299     Oslo     1
Var innom for å se plassering av hus. Gøy å få noen stolper på huset. Fikk knipset noen bilder av tomt og utsikt også.


Kan se ut som eneste støy den veien blir en og annen "Fore"! fra golfbanen. Ser Nice ut.

Kan ofte være lurt å ta tegninger av rør/ledninger med en klype salt!
Villadrømmen i Asker - 1A08D610-55B5-403E-B52F-A28BBCAC2438.jpeg - Sean Angus
Villadrømmen i Asker - 6A68C5C2-A3BD-4CAB-ADA5-6A0CE1567A33.jpeg - Sean Angus
Signatur